Search

Leave a Message

Thank you for your message. I will be in touch with you shortly.

419 N Marsalis Ave Avenue
419 N Marsalis Ave Avenue
SEE ALL PHOTOS
419 N Marsalis Ave Avenue
419 N Marsalis Ave Avenue
For Sale

419 N Marsalis Ave Avenue

419 N Marsalis Avenue, Dallas, TX 75203

$155,000
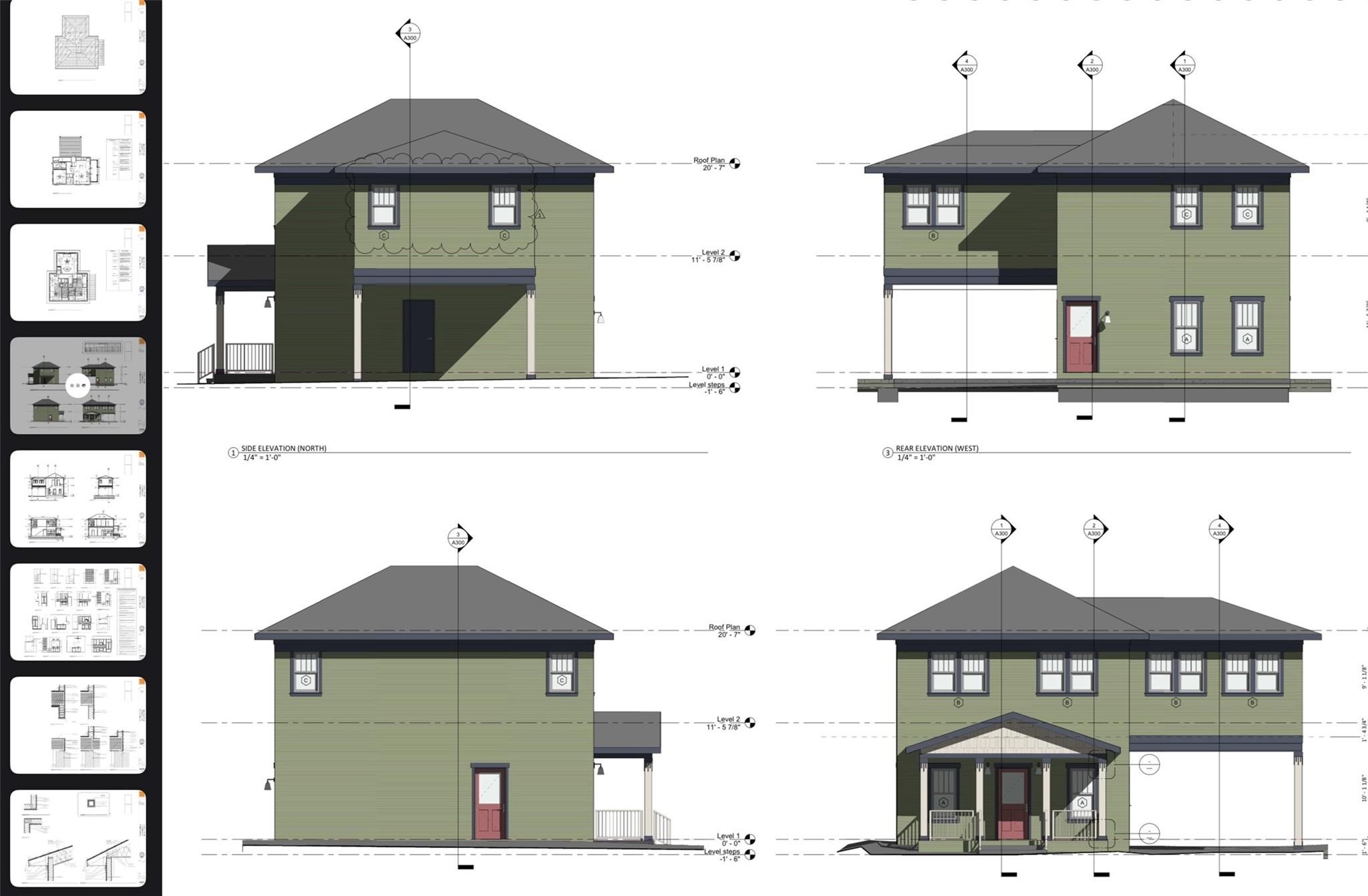
DEVELOPMENT-READY LOT IN OAK CLIFF - MULTIFAMILY OPPORTUNITY!
Builders, investors, and developers--this prime vacant lot in Oak Cliff, Dallas is ready for your next project. City-approved plans for a multifamily triplex (buyer to verify zoning), but the approved plans have recently expired (due to no activity), but can be easily reinstated, offering an efficient path for development. This property offers an exceptional opportunity to build new construction rental units or a custom investment property in one of Dallas' fastest-growing neighborhoods.
The city-approved plans have recently expired but can be reinstated, streamlining the development process and minimizing upfront delays. Located just minutes from Bishop Arts District, Downtown Dallas, and major highways (I-35, I-30, US-67), this lot is surrounded by new construction, urban revitalization, and high rental demand.
This high-ROI development site is ideal for builders, real estate investors, and multifamily developers looking to capitalize on Dallas' booming real estate market. Buyer to verify zoning, building restrictions, and utility availability.

3
beds

3
baths

2,125 Sq.Ft. LIVING AREA

5,662.8 Sq.Ft. lot

Dustin Merritt

Dustin Merritt

Features & Amenities

Interior

  • total bedrooms3
  • Total bathrooms3
  • full bathrooms3
  • other interior Features Other

Area & Lot

  • Status For Sale
  • Living Area2,125 Sq.Ft.
  • Total Area2,125 Sq.Ft.
  • Lot Area5,662.8 Sq.Ft.
  • MLS® ID21104160
  • TypeMulti-Family
  • YEAR BUILT1900
  • Elementary SchoolBowie
  • Middle SchoolGarcia
  • High SchoolAdamson
  • School DistrictDallas ISD

Exterior

  • STORIES2
  • water SourcePublic
  • utilitiesElectricity Available, Natural Gas Available, Other, Sewer Available, Water Available
  • PoolNone
  • roofOther
  • lot featuresCleared, Level, Few Trees
  • parkingAssigned
  • HEAT TYPEElectric, Other
  • AIR CONDITIONINGNone
  • sewerPublic Sewer
  • SubstructurePillar/Post/Pier, Slab

Financial

  • Sales Price$155,000
image

Schedule a Showing

I would love to show you my beautiful property. Please select your preferred date and time below. I will be in touch shortly to confirm your appointment.

Schedule a Showing

I would love to show you my beautiful property. Please select your preferred date and time below. I will be in touch shortly to confirm your appointment.

Thank you for your interest in 419 N Marsalis Avenue, Dallas, TX 75203. We are reviewing your request and will be in touch shortly!

Mortgage Calculator

Estimate your monthly mortgage payment, including the principal and interest, property taxes, and HOA. Adjust the values to generate a more accurate rate.

All estimates are provided for informational purposes only. Actual amounts may vary.
$0,000 Your Payment 20 15 65
$0,000 Your Payment

Let’s Build Your Real Estate Success Together

Whether you’re searching for your dream home, planning to sell for top dollar, or exploring investment opportunities, our expert team is dedicated to providing personalized guidance, market expertise, and unwavering support to help you achieve your real estate goals in Texas.

Follow Me on Instagram